Sanierungsbedürftige Doppelhaushälfte auf großem Grundstück in Toplage von Korschenbroich

41352 Korschenbroich, Doppelhaushälfte zum Kauf

Kontaktdaten

Michael Deussen, Michael Deussen Immobilien

reserviert

Dieses Objekt ist zur Zeit leider nicht verfügbar.

Objektdaten

  • Objekt-ID
    347
  • Objekttypen
    Doppelhaushälfte, Haus
  • Adresse
    An Heldsmühle 36
    41352 Korschenbroich
    Nordrhein-Westfalen
  • Etagen im Haus
    3
  • Wohnfläche ca.
    127,20 m²
  • Grund­stück ca.
    870 m²
  • Zimmer
    7
  • Schlafzimmer
    6
  • Badezimmer
    1
  • Heizungsart
    Etagenheizung
  • Wesentlicher Energieträger
    Gas
  • Baujahr
    1929
  • Letzte Modernisierung
    1980
  • Zustand
    sanierungsbedürftig
  • Außen­stellplätze
    2
  • Käufer­provision
    2,975 % inkl. MwSt.
  • Kaufpreis
    340.000 EUR

Ausstattung / Merkmale

  • ✓ Außenstellplatz
  • ✓ Carport
  • ✓ Garten/Gartennutzung
  • ✓ Gäste-WC
  • ✓ Keller

Energieausweis

  • Energieausweistyp
    Bedarfs­ausweis
  • Ausstellungsdatum
    15.10.2025
  • Gültig bis
    15.10.2035
  • Gebäudeart
    Wohngebäude
  • Baujahr lt. Energieausweis
    1999
  • Primärenergieträger
    Gas
  • Endenergie­bedarf
    343,40 kWh/(m²·a)
  • Energie­effizienz­klasse
    H
0 25 50 75 100 125 150 175 200 225 250+ H G F E D C B A A+ H G F E D C B A A+ Endenergiebedarf 343,40 kWh/(m²·a)

Objekt­beschreibung

Beschreibung

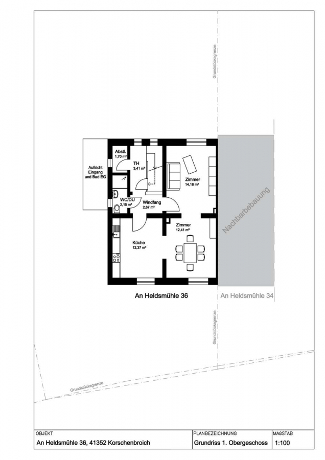
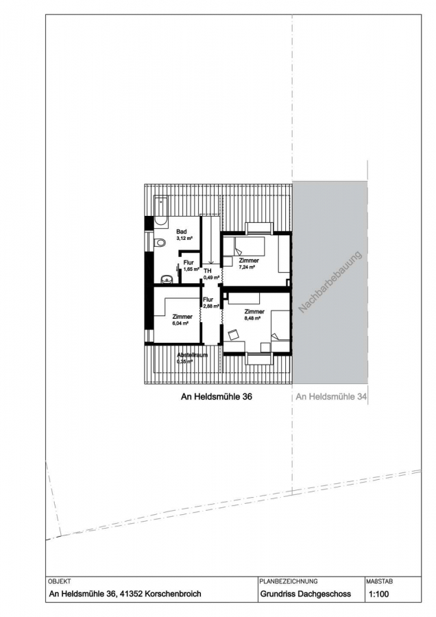
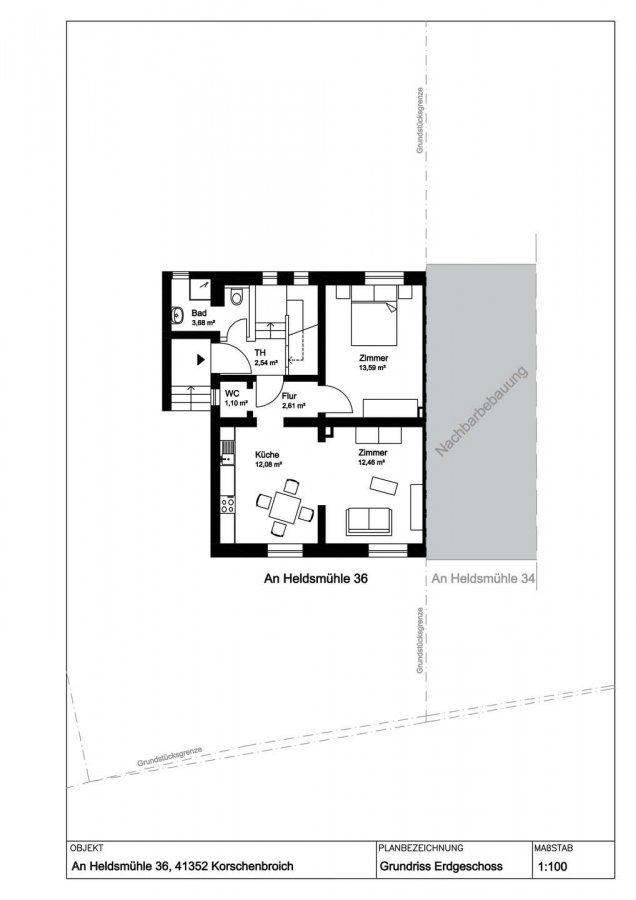
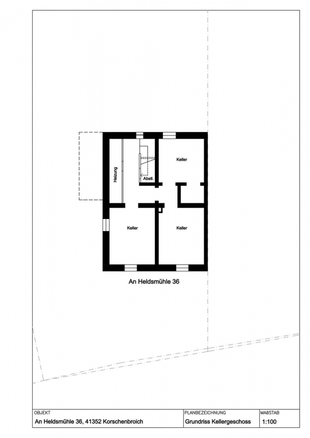
Das ca. 1929 erbaute Einfamilienhaus erstreckt sich über 2 Vollgeschosse und das ausgebaute Dachgeschoss. Das Haus ist voll unterkellert.
In der Vergangenheit wurde es als Mehrgenerationenhaus genutzt, sodass zwei Küchen und zwei Nasszellen verfügbar sind.

Ausstattung

Das Haus ist einfach ausgestattet, eine umfängliche Sanierung ist notwendig.

Lage

Korschenbroich - hier lässt´s sich leben!
Diesen Slogan hat die Stadt Korschenbroich zurecht gewählt, denn die Nähe zu den benachbarten Großstädten, wie Mönchengladbach, Neuss und Düsseldorf in Verbindung mit einer kleinstädtischen Wohnstruktur macht diese Lage zu etwas ganz Besonderem.
In unmittelbarer Nähe zum Zentrum von Korschenbroich, aber dennoch ruhig, befindet sich dieses tolle Grundstück.
Vom Bahnhof Korschenbroich, der ca. 5 Minuten entfernt ist, beträgt die Fahrtzeit zum Düsseldorfer Hauptbahnhof 25 Minuten, Mönchenglabach ist in 10 Minuten erreichbar. Auch mit dem Auto beträgt die Fahrtzeit nach Düsseldorf nur 25 Minuten, die Autobahnanschlüsse der A44 oder A52 sind schnell erreichbar.
Trotz der Zentralität hat sich die Stadt Korschenbroich ein ländlichen Flair bewahrt.

Sie sehen gerade einen Platzhalterinhalt von Google Maps. Um auf den eigentlichen Inhalt zuzugreifen, klicken Sie auf die Schaltfläche unten. Bitte beachten Sie, dass dabei Daten an Drittanbieter weitergegeben werden.

Mehr Informationen

Direktanfrage

* Pflichtangaben
 SSL-verschlüsselt
Immobiliendaten-Import und Darstellung für WordPress: WP-ImmoMakler